Geospatial Leading Company

Get a Free quote

Your Name*

Email*

Mobile No.*

Message*

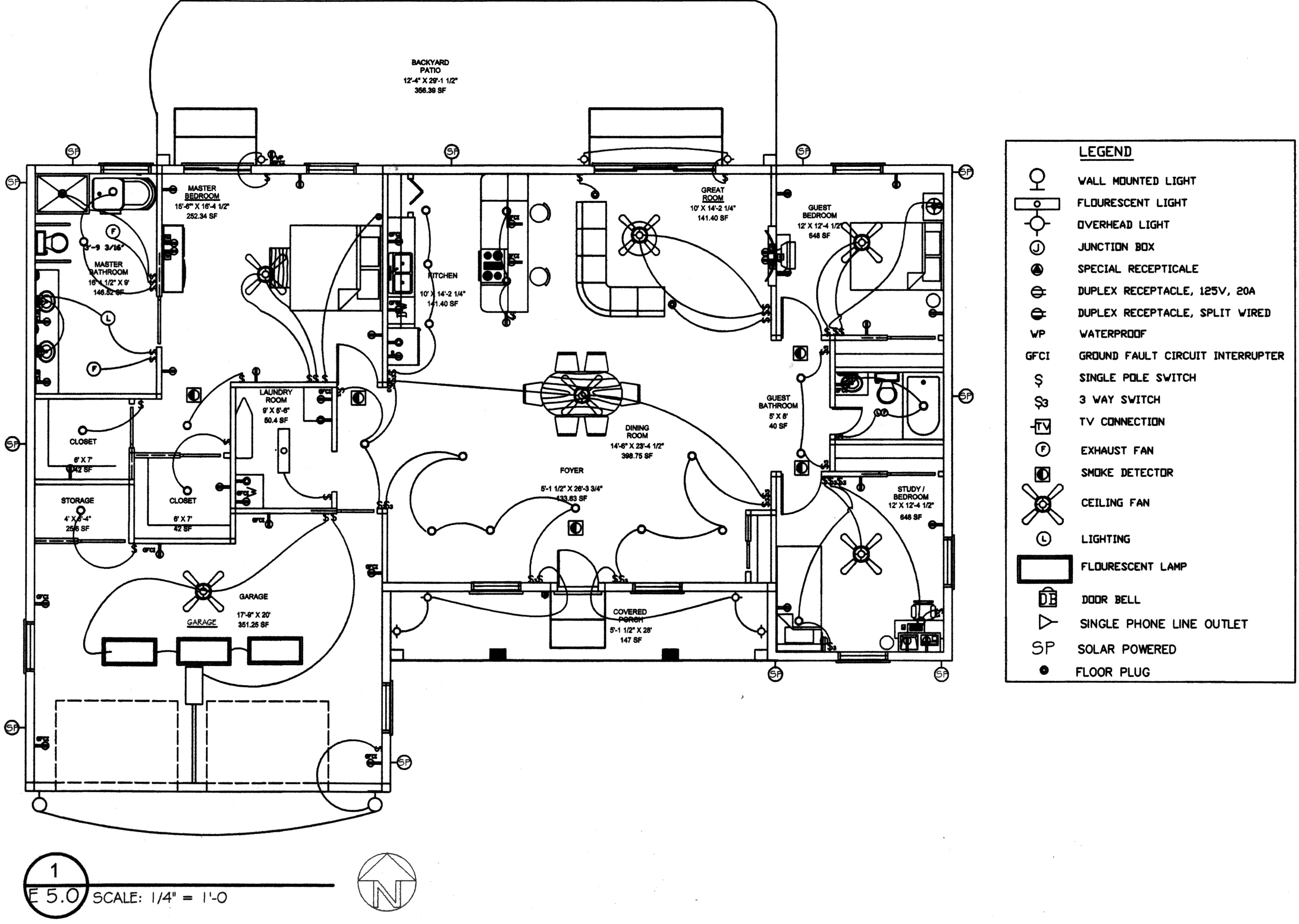
CAD Drafting Services

Unique Photogrammetry Solutions drafting services are not only offers cost effective cad services, but also add values by enhancing productivity and quality. We always strive to improve our cad design services by listening to our global customers and imparting a constantly high quality cad drafting services as well as we trained our employees accordingly.

cad drafting services

Our CAD Drafting Services Include

  • Architectural Drafting Services from a free hand sketch
  • Cad Conversion form a PDF/ paper drawing
  • Editing CAD files from mark-ups
  • Correcting CAD standards
  • Convresion between CAD and other platforms/software
  • CAD Documentation services

Copyright © Unique Photogrammetry Solutions